LAGE
Die Gemeinde Bad Ragaz an der südwestlichen Talseite im Sarganserland liegt am Fusse des 2488m hohen Pizol und wird im Osten durch den Rhein und die Autobahn A13 vom Kanton Graubünden und der Nachbarsgemeinde Maienfeld abgegrenzt. Seit dem 19. Jahrhundert ist Bad Ragaz mit seiner Tamina-Therme und den Kurhotels als Badekurort bekannt.
Über die A13 erreicht man in 20min die nächstgrössere Stadt Chur. Zürich und St. Gallen sind jeweils 50min entfernt. Der Bahnhof Bad Ragaz hat Verbindungen alle 60min nach Zürich, St. Gallen, Chur und Sargans.
Das Ortszentrum von Bad Ragaz mit Coop, Post, Bank sowie Restaurants und Geschäften ist von der Überbauung Ochsenbrunnen in 10min zu Fuss erreichbar, ÖV-Haltestelle in direkter Umgebung. In Bad Ragaz herrscht eine teils luxuriöse Atmosphäre mit dem Grand Resort Bad Ragaz, seinem Casino und dem Thermalbad. Als Ausgangspunkt für verschiedenen Freizeitangebote finden sich in der Gemeinde zwei Golfplätze, eine Ruine, der Giessenpark mit Freibad samt Campingplatz und direkt vor der Haustüre die Pizolbahnen, welche zum Wandern und Skifahren einladen.
Ragaz war ursprünglich ein Bauerndorf. Durch die Errichtung des Palais Hof Ragaz und die Leitungsführung des Quellwassers von Bad Pfäfers nach Ragaz, erlangte das Dorf entsprechend an Bedeutung. Die Geschichte von Bad Ragaz ist eng mit jener der Benediktiner-Abtei Pfäfers verbunden. Diese besass in der Gemeinde den grössten Grundbesitz und Rechte. Das fürstäbliche Palais Hof Ragaz war die Statthalterei der Abtei. Bad Ragaz hatte während Jahrhunderten grosse Bedeutung an der Nord-Süd-Verkehrsachse zwischen Deutschland und Italien. Nach der Aufhebung der Abtei im Jahr 1838 übernahm der Kanton St. Gallen den klösterlichen Besitz sowie die Thermalquelle in der Taminaschlucht.
Bad Ragaz ist attraktiv für alle, die Wert auf eine hohe Lebensqualität legen. «Hier sein ist herrlich»- so heisst es.
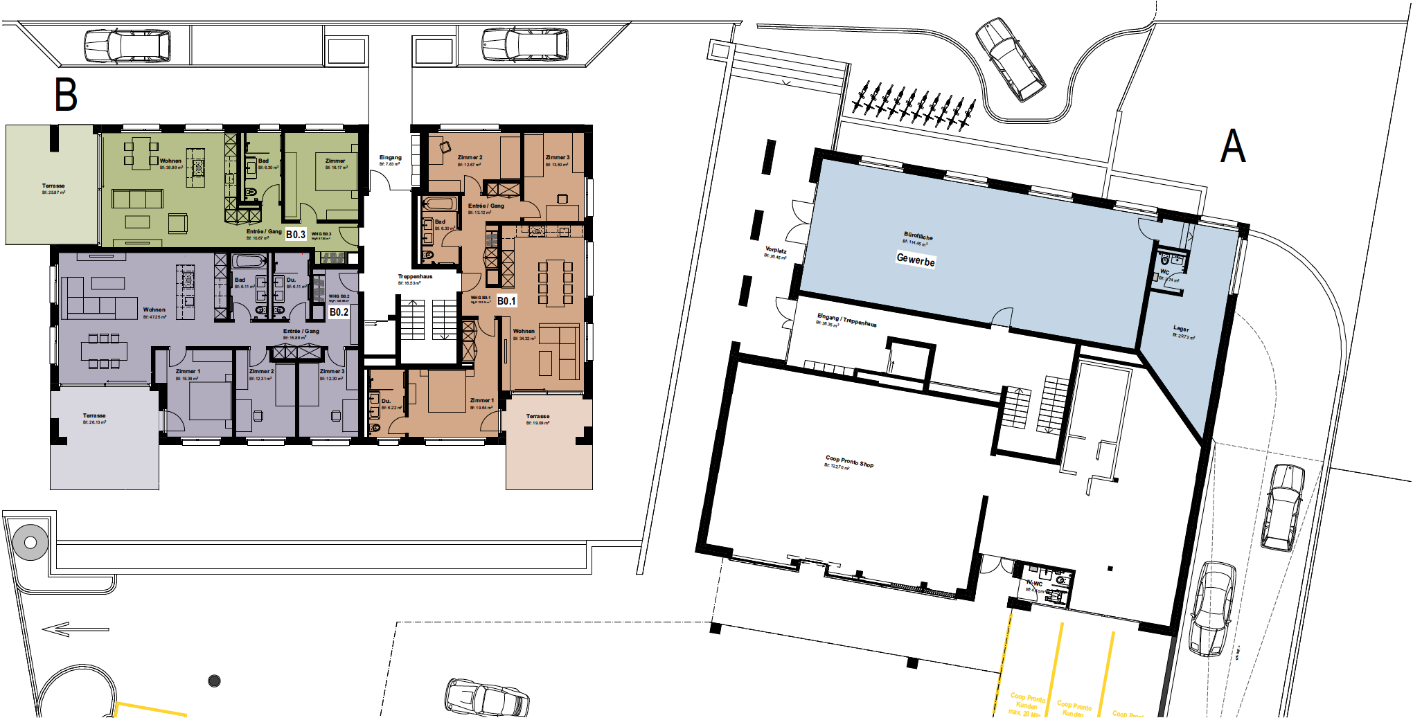
VERMIETUNG – HAUS A und B
| Whg.-Nr. | Zimmer | GF / WK + Keller |
|---|---|---|
| B0.1 | 4.5 | 18.17 m2 |
| B0.2 | 4.5 | 13.69 m2 |
| B0.3 | 2.5 | 13.69 m2 |
| B1.4 | 4.5 | 12.27 m2 |
| B1.5 | 4.5 | 12.27 m2 |
| B1.6 | 3.5 | 12.27 m2 |
| B2.7 | 2.5 | 12.55 m2 |
| B2.8 | 3.5 | 13.37 m2 |
| Whg.-Nr. | Zimmer | GF / WK + Keller |
|---|---|---|
| A1.1 | 3.5 | 13.30 m2 |
| A1.2 | 3.5 | 13.21 m2 |
| A1.3 | 4.5 | 13.21 m2 |
| A1.4 | 2.5 | 13.21 m2 |
| A2.5 | 3.5 | 13.21 m2 |
| A2.6 | 3.5 | 13.21 m2 |
| A2.7 | 4.5 | 13.21 m2 |
| A2.8 | 2.5 | 13.21 m2 |
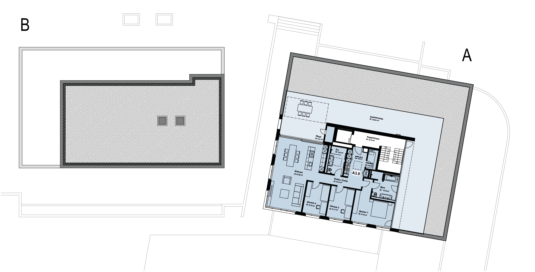
| A3.9 | 4.5 | 17.12 m2 |
| Whg.-Nr. | Zimmer | m2 | Besonderheiten | Nettomiete | HK / NK | |
|---|---|---|---|---|---|---|
| A3.9 | 4.5 | 165.29 | Dachterrasse 136.51 m2 | CHF 2’400.00 | CHF 300.00 |
| Whg.-Nr. | Zimmer | GF / WK + Keller |
|---|---|---|
| B0.1 | 4.5 | 18.17 m2 |
| B0.2 | 4.5 | 13.69 m2 |
| B0.3 | 2.5 | 13.69 m2 |
| B1.4 | 4.5 | 12.27 m2 |
| B1.5 | 4.5 | 12.27 m2 |
| B1.6 | 3.5 | 12.27 m2 |
| B2.7 | 2.5 | 12.55 m2 |
| B2.8 | 3.5 | 13.37 m2 |
| A1.1 | 3.5 | 13.30 m2 |
| A1.2 | 3.5 | 13.21 m2 |
| A1.3 | 4.5 | 13.21 m2 |
| A1.4 | 2.5 | 13.21 m2 |
| A2.5 | 3.5 | 13.21 m2 |
| A2.6 | 3.5 | 13.21 m2 |
| A2.7 | 4.5 | 13.21 m2 |
| A2.8 | 2.5 | 13.21 m2 |
| A3.9 | 4.5 | 17.12 m2 |
Ausführungsbedingte Änderungen, Anpassungen und/oder Massabweichungen können vorkommen und bleiben jederzeit ausdrücklich vorbehalten.
ZUKUNFTORIENTIERTES BAUEN
ZUKUNFT-ORIENTIERTES BAUEN
Als Grundbaustoff, mit Ausnahme der Statischen Elemente aus Beton, wird für die Gebäudehülle und die inneren Trennwände ein Porenbetonstein gewählt. Die drei mineralischen Grundrohstoffe des Porenbeton Quarzsand, Kalk und Zement gelten als natürlicher und praktisch unerschöpflicher Baustoff. Nachhaltiges Bauen bedeutet bei der Planung und Ausführung, auch die Fragen der Umwelt und der Ökologie umfassend zu berücksichtigen. Dazu gehört nicht nur, dass der Baustoff des Hauses energieeffizient sein soll, sondern auch frei von Schadstoffen und entsprechend langlebig. Aus diesen Gründen und auch aus wohngesundheitlichen und baubiologischen Aspekten haben wir uns bei diesem Bau für den Porenbeton entschieden.
KURZBAUBESCHRIEB
KURZ-BAUBESCHRIEB
HINWEIS
Massgebend ist der detaillierte Bau- und Leistungsbeschrieb. Die nachfolgenden Ausführungen sind Auszüge daraus.
ALLGEMEIN
Alle Wohnungen sind rollstuhlgängig und werden über Lift und Treppenhaus direkt von der Einstellhalle erschlossen. Die Parkierung erfolgt über eine gemeinsame Zufahrt. Geräumige, gut zugängliche Veloräume, Kellerabteile und wohnungseigene Waschküchenbefinden sich im Untergeschoss der Überbauung.
KONSTRUKTION / GEBÄUDEHÜLLE
Massivbauweise in Beton und Einsteinmauerwerk Porenbetonstein. Flachdach extensiv begrünt. Fassade in Mineralputz gestrichen. Fenster aus Holz/Metall. Elektrische Verbundraffstoren. Gelenkarmmarkisen bei den Dachterrassen.
HEIZUNG
Wasser/Wasser Wärmepumpe. Bodenheizung mit Free Cooling (Sommerbetrieb)
LÜFTUNG
Kontrollierte Wohnungslüftung mit Einzelraumsteuerung. Küchenabluft mit Umluft. Kellerräume einzeln be- und entlüftet.
ELEKTRO
eSMART Technologie in allen Wohnungen installiert, sämtliche Leuchten in LED. Photovoltaikanlage zum Eigengebrauch auf dem Dach. Einbauspots im Entrée, Gang, Küche und Nasszellen. Anschlüsse für Deckenleuchten in Zimmern und Wohnbereichen. Steck- und Multimediadosen in ausreichender Zahl. Elektroauto-Ladestation bei allen Parkplätzen in der Einstellhalle sind vorgesehen.
SANITÄR
Sanitärapparate und Zubehör gemäss separatem Baubeschrieb. Aussenwasserhähne bei Gartensitzplätzen und Dachterrassen.
Waschmaschine und Trockner in sämtlichen Kellerabteilen zur Eigennutzung.
KÜCHEN
Einbauküchen in gehobenem Standard, Spültisch aus Chromstahl, Mischbatterien mit Schwenkauslauf und Auszugbrause.
METALLBAU
Hauseingangstüren und Treppenhaustüren in Metall-Glas-Ausführung. Briefkastenanlage mit Sonnerie in Aluminium. Treppengeländer Metall mit Handlauf in Eiche. Glasgeländer bei den Loggien und Dachterrassen.
SCHREINERARBEITEN
Wohnungseingangstüren in schalldämmender Ausführung mit Sicherheitsschild und Türspion. Zimmertüren als Holztüre mit Metallzargen. Garderoben- und Einbauschränke gemäss den Projektplänen.
OBERFLÄCHEN
Bodenbeläge in Platten und Eichenparkett. Wände in Abrieb, Decken in Weissputz. Wände in den Nasszellen raumhoch mit Platten und Mosaik. Treppenhäuser, allgemeine Korridore und Kellerräume mit Plattenbelag. Balkone und Dachterrassen mit Plattenbelag.
UMGEBUNG
Die allgemeinen und privaten Aussenanlagen werden so gestaltet, dass ein einheitliches und harmonisches Gesamtkonzept entsteht.